Please roate your phone

We will be in touch with you shortly.

  • Year: 1998
  • Area: 58,000 sq.m
  • Project Phases: Competition Entry
  • Location
  • 2 W Chang’an Ave, Xixheng Qu, Beijing, China, 100031

  • Share

National Grand Theater

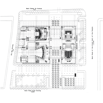
The National Grand Theater site is in central Beijing to the west of Tian An Men Square.  It is bordered by Chang An Avenue to the north, Great Hall of the People to the east, and Shi Bei Hutong to the west.  To the south, is a proposed urban landscape area and East Rong Xian Hutong.  The theater and adjacent urban landscape will anchor a newly defined distinct and autonomous urban district for Beijing.

 

Where Tian An Men Square derives its significance from its history, the new National Grand Theater and its adjacent urban landscape area should reflect the present and become a beacon to the future.  Chang An Avenue is the main east/west link for the city of Beijing; it is an important urban artery that connects many of the city’s important landmarks.  This location was identified as an opportunity to implement a bridge and mediator between the future and the past.  With a strong urban position as its base the building focuses on spatial patterns of traditional Chinese culture as well as traditional theatrical space and architectural typology.

  • Institutional
  • Year: 1998
  • Area: 58,000 sq.m
  • Project Phases: Competition Entry